【成約済】敷地42坪超・武5丁目戸建(IB000193)
[物件種別:一戸建て(中古)]
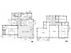
| 価格 | 600万円 | 間取り | 4DK | 接道 | |
|---|---|---|---|---|---|
| 築年月 | 1981年12月 | 敷地面積 | 140.61m2 | 建物面積 | 99.97m2 |
| 住所 | 神奈川県横須賀市武5-16-15 | ||||
| アクセス | |||||
- 海が見える
- ペット相談
- 大学生向け
- ベース契約限定
- 駅から5分以内
- 最上階
- 追焚き
- CSアンテナ
- TVドアホン
- 画像有
- 礼金無
- エアコン
- BSアンテナ
- 楽器相談
- 駐車場有
- 敷金無
- ロフト付
- オートロック
- 事務所可
- 2階以上
- バス・トイレ別
- 室内洗濯機置場
- フローリング
- 1階限定
- ガスコンロ
- CATV
- 角部屋
- 家具・家電付き
- 媒介
部屋の写真・間取りなど
-
画像を拡大表示
昭和56年築・4SDK!室内まだまだ使用できます!
-
画像を拡大表示
明るい敷地と間取りの広さが魅力!
-
画像を拡大表示
閑静な分譲地で住環境良好!
-
画像を拡大表示
まずはお気軽にお問い合わせください。
物件の概要
| 名称 | 【成約済】敷地42坪超・武5丁目戸建 | 構造 | |
|---|---|---|---|
| 間取り詳細 | |||
| 駐車場 | 無し | 所在階/階数 | 2階 |
| 設備・条件 | |||
| 借地権 | 取引態様 | ||
| セットバック | 私道面積 | 0m2 | |
| その他一時金 | 0円 | その他月次費用 | 0円 |
| その他費用 | 0円 | 建ぺい率 | |
| 容積率 | 敷地の権利形態 | ||
| 販売区画数 | 総区画数 | ||
| 地目 | 都市計画 | ||
| 用途地域 | 現況 | ||
| 引き渡し時期 | 法令上の制限 | ||
| 国土法による許可または事前届出 | 工事完了予定年月 | ||
| 建築確認番号 | 特記 | ||
| 備考 | |||

[物件担当者コメント]
※本物件はお陰様で成約となりました※
カースペースはありませんがその分、お安く設定しました!
敷地はゆとりの42坪超!南庭タップリ!
昭和56年築4SDKの広い間取り!
空室につきゆっくりと内見できます!
初めてのマイホームや投資用としてもご検討ください!